内本町松林ビルの物件情報
| 物件コード | 3941 |
|---|---|
| 物件名 | 内本町松林ビル |
| 所在地 | 大阪府大阪市中央区内本町1丁目2-6 |
内本町松林ビルの建物情報
| 構造 | SRC(鉄骨鉄筋コンクリート造) |
|---|---|
築年月 |
1992/7 |
募集階 |
地上2階 |
| 空き状況 | 空室 |
坪数 |
26.73坪(88.209㎡) |
内本町松林ビルの賃貸情報
賃料 |
160,000円 |
|---|---|
共益費 |
60,000円 |
賃料合計 |
220,000円 |
| 保証金・敷金 | 600,000円 / - |
| 解約引き | 相談 |
| 礼金 | - |
| 入居時期 | 2025年12月1日 |
内本町松林ビルの詳細情報
沿線・最寄駅 |
地下鉄 谷町線「谷町四丁目」駅 徒歩2分 地下鉄 中央線「谷町四丁目」駅 徒歩3分 |
|---|---|
| 設備詳細 |
|
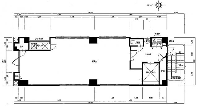
備考 |
・2階201号室 ・実効面積:22.70坪 ・エレベーター1基 ・オートロック ・大通沿い ・ワンフロア ・新耐震基準 ・電気使用料・消耗品費は別途ご負担いただきます。 ・OAフロア |

お問い合わせはこちら
お気軽にお問い合わせください!
お問い合わせフォーム >



















